00件
最近見た物件
00件
検討リスト
神戸市の賃貸|SuMirai > (賃貸)地域から探す > 神戸市中央区 > リーガル神戸元町 > 物件詳細
こだわりポイント満載のリーガル神戸元町。コンビニ「ファミリーマート 兵庫県民会館前店」が151m以内にある物件です。暇な日でもBS・CSに対応しているので、お好みの番組が見つかります。神戸市中央区エリアでの新生活をご検討の方に、素敵な暮らしを当社のスタッフが全力でサポート致します。東海道・山陽本線元町付近の情報も満載です。神戸市の賃貸なら株式会社SuMiraiへ

| 所在地 | 兵庫県神戸市中央区北長狭通4丁目9-15 | ||
|---|---|---|---|
| 交通 | |||
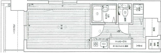
| 間取り/詳細 |
1R K 2.0帖 1室/洋室 6.0帖 1室 |
面積/バルコニー面積 | 22.87㎡/- |
| 賃料 | 4.4万円 | 管理費・共益費 | 5,860円 |
| 敷金/礼金/保証金 | 0ヶ月/1ヶ月/0ヶ月 | 償却/敷引 | -/- |
| 更新料 | - | 敷金積み増し | - |
| 権利金/雑費 | -/- | 駐車場/月額料金 | 近隣/20,000円 |
| 保険加入/料金 | 有/- | 保険名/保険期間 | -/- |
| 保証人代行義務 | - | 保証会社 | - |
| 保証会社詳細 | - | 向き | 南 |
| 築年月(築年数) | 1998年 3月 (築27年) | 契約期間 | 2年 |
| 種別/構造 | マンション/鉄筋コンクリート | 部屋/所在階/階建 | -/ 2階/ 11階建 |
| 総戸数 | - | 現況/入居可能日 | 居住中/相談 |
| 特優賃 | - | 取引態様/賃貸区分 | 仲介/一般 |
| 物件番号 | 85629941 | 取引条件の有効期限 | 2025年11月16日 |
| 設備条件 |
|
||
| 備考 | こだわりで選びたい方におすすめ。神戸市中央区エリアで住まいをお探しなら「リーガル神戸元町」。収納はクロゼット・シューズボックスなどが備え付けられているので、衣類や日用品の収納に重宝します。一口コンロが付いているマンションです。お部屋探しも楽しくワクワクしながら選びましょう。神戸市中央区エリアの東海道・山陽本線元町近くの情報が満載です。是非、お問い合せ下さい。 | ||
| 取扱会社 |
|
||
| QRコード |
このQRコードを読み取ることで、スマホでも物件情報を確認できます。 |
||
※地図上に表示される物件の位置は付近住所に所在することを表すものであり、実際の物件所在地とは異なる場合がございます。
リーガル神戸元町に関するこだわり条件から探す
神戸市中央区の町名から探す